Back to search results
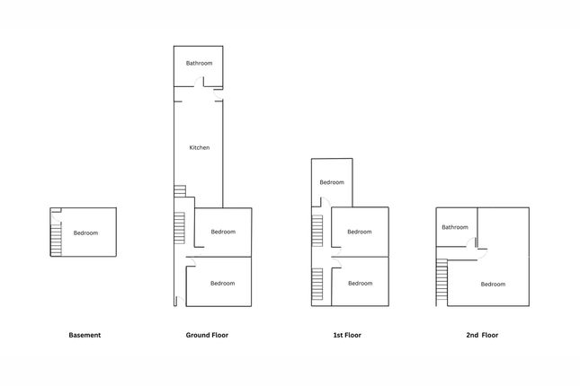
  • Floor Plan
  • EPC Certificate
Rooms 7 beds 2 bath

£ 290,000.00

7 bed terraced house for sale Sold/Delisted

Address: ************

More information

Auction: Yes
Market Status: Sold/Delisted
Schools: ************
Transport: ************
HMO Status: Existing HMO
NEAR UNIVERSITY: YES (Dist: 0.75 miles)
NEAR TRAIN STATION: YES (Dist: 0.80 miles)
NEAR BUS STATION: YES (Dist: 0.50 miles)
NEAR HOSPITAL: NO (Dist: 1.50 miles)
About this property
This fully-let 7-bedroom HMO is ideal for investors seeking strong rental returns. Currently occupied by working tenants, the property features seven bedrooms, two bathrooms, and a generous communal kitchen. It is in good working condition with all required fire safety measures in place. The property includes a garden and a single parking space. The current gross net income is £37,120, with potential to increase to £42,000 at market rates. Located near multiple supermarkets, gyms, parks, and schools, this is a turnkey investment in a high-demand area. The property is being sold via online auction.

insights

************

 Related properties

Nearby properties
6 bed terraced house for sale
TERRACED £ 375,000.00
6 bed town house for sale
TOWN_HOUSE £ 550,000.00
5 bed end terrace house for sale
END_TERRACE £ 335,000.00
4 bed terraced house for sale
TERRACED £ 230,000.00
4 bed semi-detached house for sale
SEMI_DETACHED £ 110,000.00
Properties in same Property type
4 bed terraced house for sale
TERRACED £ 139,995.00
7 bed terraced house for sale
TERRACED £ 550,000.00
4 bed terraced house for sale
TERRACED £ 280,000.00
5 bed terraced house for sale
TERRACED £ 600,000.00
5 bed terraced house for sale
TERRACED £ 560,000.00
Agent Name: xxxx
Unlock Full Property Details!

Want to see the full address, agent contact, and more?

  • Full property address
  • Direct contact details for the agent
  • Exclusive photos and documents
  • Early access to new listings