Back to search results
  • Floor Plan
Rooms 5 beds 0 bath

£ 180,000.00

5 bed semi-detached house for sale Sold/Delisted

Address: ************

More information

Market Status: Sold/Delisted
Schools: ************
Transport: ************
About this property
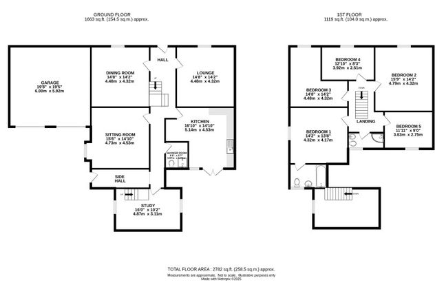
A Grade II listed large five bedroom semi detached house in need of renovation with parking and a double garage at the rear. This property features four reception rooms, a kitchen, a shower room, and a master bedroom with an ensuite bathroom, along with four further bedrooms and a bathroom. The house is believed to date back to 1800 and is of Georgian style. It is suitable for conversion to an HMO with the necessary license. Multiple supermarkets, gyms, parks, and schools are located within 1.0 mile. The property is being sold by auction on Wednesday, 22 Oct 2025.

insights

************

 Related properties

Nearby properties
7 bed detached house for sale
DETACHED £ 320,000.00
3 bed terraced house for sale
TERRACED £ 149,950.00
5 bed terraced house for sale
TERRACED £ 170,000.00
5 bed semi-detached house for sale
SEMI_DETACHED £ 135,000.00
6 bed semi-detached house for sale
SEMI_DETACHED £ 140,000.00
Properties in same Property type
5 bed semi-detached house for sale
SEMI_DETACHED £ 825,000.00
7 bed semi-detached house for sale
SEMI_DETACHED £ 499,999.00
4 bed semi-detached house for sale
SEMI_DETACHED £ 729,950.00
6 bed semi-detached house for sale
SEMI_DETACHED £ 375,000.00
4 bed semi-detached house for sale
SEMI_DETACHED £ 210,000.00
Agent Name: xxxx
Unlock Full Property Details!

Want to see the full address, agent contact, and more?

  • Full property address
  • Direct contact details for the agent
  • Exclusive photos and documents
  • Early access to new listings