Back to search results
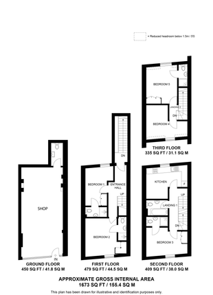
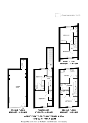
  • Floor Plan
Rooms 5 beds 0 bath

£ 1,000,000.00

5 bed property for sale Sold/Delisted

Address: ************

More information

Auction: No
Market Status: Sold/Delisted
Schools: ************
Transport: ************
HMO Status: Existing HMO
NEAR UNIVERSITY: NO (Dist: 1.50 miles)
NEAR TRAIN STATION: YES (Dist: 0.75 miles)
NEAR BUS STATION: YES (Dist: 0.30 miles)
NEAR HOSPITAL: NO (Dist: 1.20 miles)
About this property
A mixed use freehold property consisting of a commercial unit and a well appointed 5 bed HMO, finished to a high standard. The total income for the building is £71,890, representing a yield of 7.2%. The commercial unit is currently operated as a hair salon and will be sold with vacant possession. The HMO is let on 5 separate ASTs to young professionals, making it an ideal income producing asset. Multiple supermarkets, gyms, parks, and shopping centres are located within 1.0 mile. The property is within easy reach of public transport, with a train station 0.75 miles away and a bus station 0.30 miles away.

insights

************

 Related properties

Nearby properties
8 bed terraced house for sale
TERRACED £ 1,400,000.00
Property for sale
NONE £ 5,500,000.00
4 bed terraced house for sale
TERRACED £ 1,045,000.00
4 bed property for sale
NONE £ 975,000.00
5 bed terraced house for sale
TERRACED £ 1,000,000.00
Properties in same Property type
3 bed property for sale
NONE £ 230,000.00
5 bed property for sale
NONE £ 165,000.00
5 bed property for sale
NONE £ 200,000.00
Agent Name: xxxx
Unlock Full Property Details!

Want to see the full address, agent contact, and more?

  • Full property address
  • Direct contact details for the agent
  • Exclusive photos and documents
  • Early access to new listings