Back to search results
  • Floor Plan
Rooms 4 beds 0 bath

£ 155,000.00

4 bed terraced house for sale Sold/Delisted

Address: ************

More information

Auction: No
Market Status: Sold/Delisted
Schools: ************
Transport: ************
HMO Status: Existing HMO
NEAR UNIVERSITY: YES (Dist: 0.50 miles)
NEAR TRAIN STATION: YES (Dist: 0.75 miles)
NEAR BUS STATION: YES (Dist: 0.80 miles)
NEAR HOSPITAL: NO (Dist: 1.50 miles)
About this property
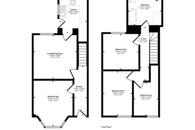
This four double bedroom terrace HMO property is an excellent investment opportunity for any HMO landlord. The accommodation includes an entrance hallway, a living/dining room, and a kitchen on the ground floor, with three double bedrooms and a family bathroom upstairs. The property features mains gas fired central heating and UPVC double glazed windows throughout. It is well presented and fully furnished, currently rented at £1200 pcm, providing a yield of 9.29%. The property is HMO licensed and has no onward chain. Located within walking distance to multiple supermarkets, gyms, parks, and schools, it is also just 0.50 miles from the University, 0.75 miles from the nearest train station, and 0.80 miles from the bus station.

insights

************

 Related properties

Nearby properties
4 bed terraced house for sale
TERRACED £ 145,000.00
3 bed property for sale
NONE £ 140,000.00
5 bed detached house for sale
DETACHED £ 230,000.00
3 bed end terrace house for sale
END_TERRACE £ 129,950.00
7 bed detached house for sale
DETACHED £ 260,000.00
Properties in same Property type
4 bed terraced house for sale
TERRACED £ 139,995.00
7 bed terraced house for sale
TERRACED £ 550,000.00
4 bed terraced house for sale
TERRACED £ 280,000.00
5 bed terraced house for sale
TERRACED £ 600,000.00
5 bed terraced house for sale
TERRACED £ 560,000.00
Agent Name: xxxx
Unlock Full Property Details!

Want to see the full address, agent contact, and more?

  • Full property address
  • Direct contact details for the agent
  • Exclusive photos and documents
  • Early access to new listings