Back to search results
1 Rooms 14 beds 8 bath

£ 435,000.00

14 bed property for sale Sold/Delisted

Address: ************

More information

Council tax band: A
Auction: Yes
Market Status: Sold/Delisted
Schools: ************
Transport: ************
HMO Status: HMO Conversion
NEAR UNIVERSITY: NO (Dist: 2.50 miles)
NEAR TRAIN STATION: NO (Dist: 1.50 miles)
NEAR BUS STATION: YES (Dist: 0.75 miles)
NEAR HOSPITAL: NO (Dist: 1.20 miles)
About this property
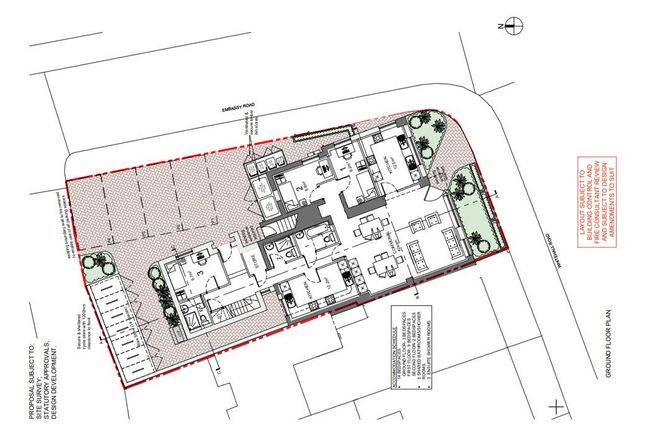
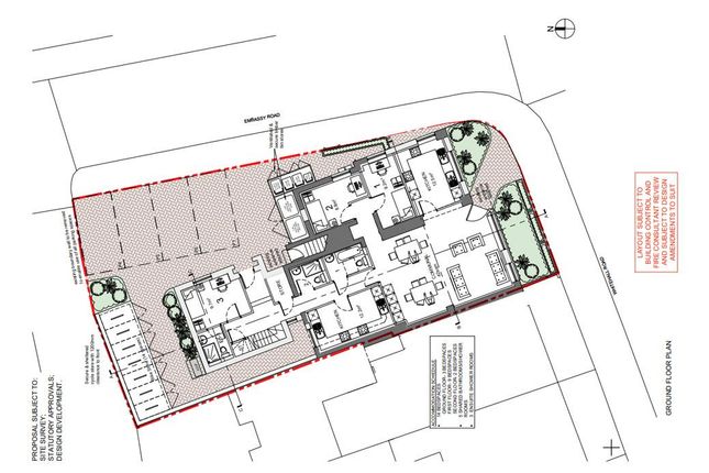
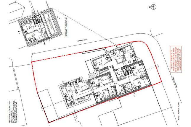
A Freehold development opportunity with planning granted to create a 14 bed, 8 bath HMO (3218 Sq Ft) with potential income of £126k per annum. The property is currently arranged as a ground floor retail unit with a self-contained flat on the first floor, sold with vacant possession. The proposed scheme includes a large communal reception area, 2 separate communal kitchens, and 14 bedrooms (5 shared, 3 en suite) over 3 floors. Outside, there are 4 parking spaces plus bike and bin stores. Multiple supermarkets are within 1.0 mile. The property will be sold at auction.

insights

************

 Related properties

Nearby properties
Houseboat for sale
HOUSEBOAT £ 420,000.00
1 bed property for sale
NONE £ 325,000.00
Properties in same Property type
3 bed property for sale
NONE £ 230,000.00
5 bed property for sale
NONE £ 165,000.00
5 bed property for sale
NONE £ 200,000.00
Agent Name: xxxx
Unlock Full Property Details!

Want to see the full address, agent contact, and more?

  • Full property address
  • Direct contact details for the agent
  • Exclusive photos and documents
  • Early access to new listings